here Kyoto Tainan

慎ましく街に、大胆に空にひらく場
Modestly to the Street, Boldly to the Sky
台南という街を歩くと、計画的な都市では生まれにくい、生活者の導線やヒューマンスケールの心地よさが随所に残っていることに気づく。
そこには日本統治時代の建築や街並みが多く残されており、どこか懐かしさを伴う情景が今も息づいている。
歴史的建築の隣で市場の朝食風景が展開されるように、異なるスケール・時間・文化が有機的に共存する点こそが、この街の魅力であると言える。
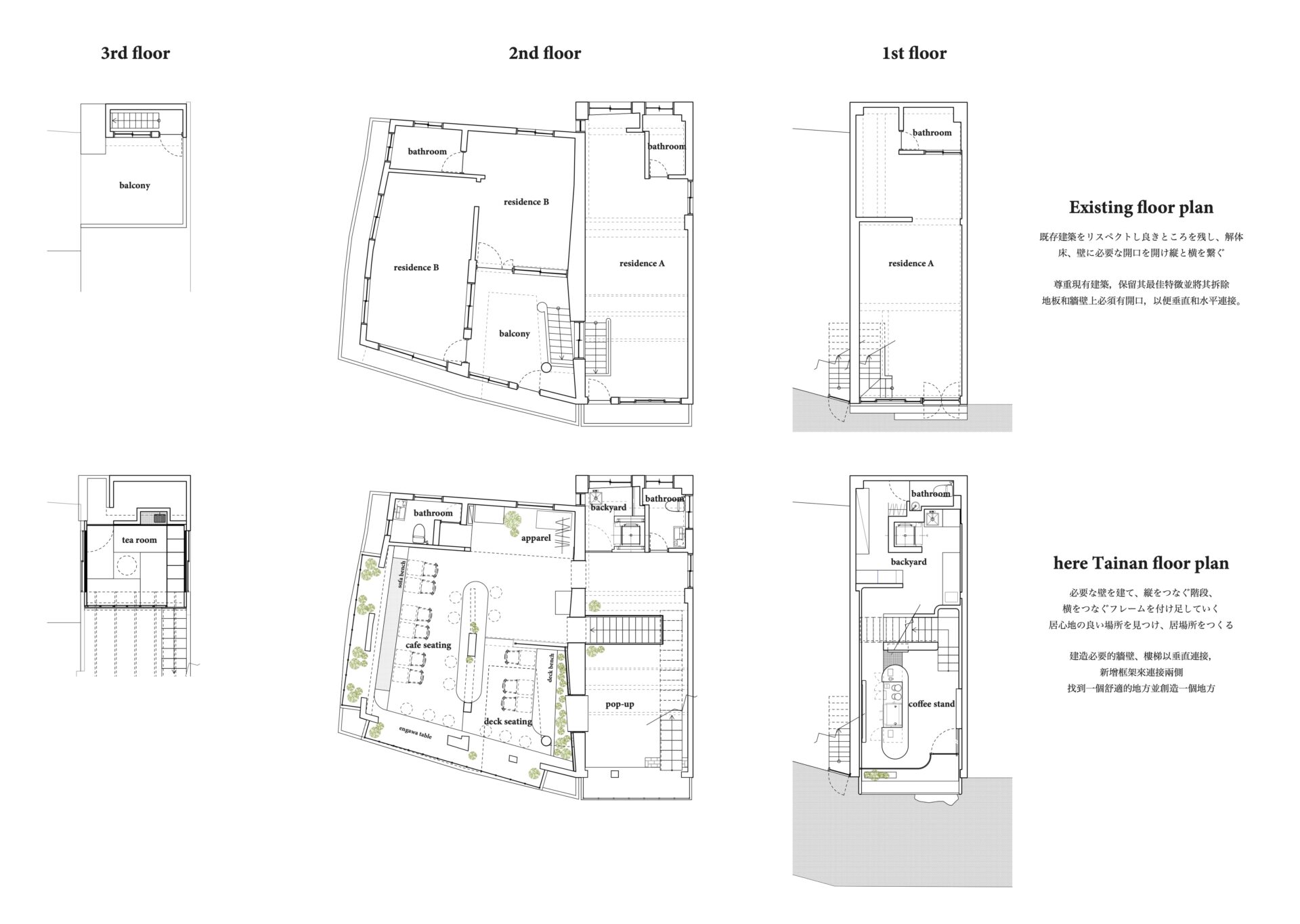
本プロジェクトの計画地は、台湾でも指折りの歴史を持つ清水寺(セイスイジ)とガジュマルの大木を眼前に望む生活路に面した、わずか間口3.5m × 奥行10mの長屋であった。上下階が入り組んだ複雑な不動産事情により、2階が1階の3倍ほどの広さを持つというユニークな構成となっていた。
設計は街並に対して「慎ましく」存在するファサードを設けることからスタートした。
間口3.5m × 高さ3mの高床フレームはカフェの顔であると同時に、腰を下ろすことのできるベンチとしても機能する。
手仕事の瓦の床や錫のカフェカウンターが内側へと意識を導き、通りに対して街のリズムを乱さず「カフェ」としての奥行きを加えた。
カフェカウンターを抜け、階段で2階客席へ。そこは「大胆に」外へ外へと視線も意識もひらく場とした。
通りに面した二つの開口部には、ガラス出窓と一体化したテーブルやベンチを設け、人々が眼前の清水寺や大樹、その先の空へとつながる効果を意図した。
内外が緩やかに溶け合い、風や光、植物と共に日常を未来へとつなぐ装置となる。
さらに客席に隣接したギャラリーは、天井を全面トップライトとし、柔らかな自然光の下で展示を楽しめる空間とした。
街に寄り添ったカフェの内部に「空が広がる余白」を差し込む場として計画している。
街の骨格を壊すことなく、小さなスケールの積み重ねで新しい共存を示しつつ、地域に根ざした日常の延長としてデザインを目指した。
「here kyoto tainan」は、京都と台南を結ぶ拠点であると同時に、「慎ましく街に、大胆に空にひらく場」として構想された。
都市の歴史や人の営みに対しては慎ましい姿勢で臨み、空という自然へは思いきり開いていく。この対比が示す可能性は、ここでの挑戦にとどまらず、未来に向けてさらに広がっていくテーマである。
・・・
Walking through Tainan reveals qualities that rarely emerge in planned urban environments: circulation paths scaled to everyday life and a pervasive sense of human intimacy. Many surviving streets and buildings from the Japanese colonial period reinforce this atmosphere, lending the city a distinctive sense of nostalgia. Within this context, historic architecture coexists with the immediacy of daily routines—the bustle of morning markets unfolding beside heritage structures—illustrating the organic interweaving of scales, times, and cultures that defines the city’s urban fabric.
The project is sited along a narrow residential lane directly facing Seisui Temple—one of Taiwan’s oldest temples—and a large banyan tree. The townhouse measures just 3.5 meters in width and 10 meters in depth, yet due to complex local property conditions, the second floor extends to nearly three times the area of the ground floor. This atypical configuration became a key parameter of the architectural response.
Design development began with the insertion of a façade that engages the street “modestly.” A raised 3.5 × 3 meter frame serves both as the symbolic face of the café and as an inhabitable bench for passersby. The use of handmade roof tiles for the floor surface, together with a pewter counter fabricated through artisanal techniques, invites the gaze inward while preserving the rhythm of the existing streetscape.
Ascending beyond the counter, the second-floor seating extends the spatial experience “boldly” outward. Two openings toward the street incorporate glass bay windows integrated with furniture, enabling direct visual and spatial continuity with Seisui Temple, the banyan tree, and the sky beyond. Here, architecture becomes a mediating device where wind, greenery, and natural light blur the threshold between interior and exterior, aligning daily ritual with an expanded temporal horizon.
Adjacent to the seating area, a gallery bathed in daylight from a full skylight ceiling introduces a vertical dimension into the space. This continuous wash of natural light establishes a contemplative environment while embedding “a margin of sky” within the interior of the café.
The project thus seeks to articulate coexistence not by disrupting the existing urban structure, but by layering small-scale interventions that resonate as an extension of local daily life.
“here kyoto tainan” positions itself as both a cultural bridge between Kyoto and Tainan and as an architectural proposition defined by the dialectic of “modesty toward the street, boldness toward the sky.” By approaching the city’s history and human activity with humility, while opening expansively to the natural symbol of the sky, the project articulates a dual vision—one that serves as both its guiding principle and a continuing theme for future exploration.
-Shop Information-
https://coffeehere.world/
Data
-
Client
here kyoto
-
coffee shop , retail
Taiwan , Tainan
-
Completion
2025 , 06
-
Total area
145㎡
-
Design
Masaki Kato , Ryoga Osada
-
Construction
TBA
-
Photo
TBA




















